茗荷谷中古住宅

- 価格
- 19,800,000円
- 所在地
- 新潟市江南区茗荷谷475-3
- 交通
- JR信越本線「亀田駅」徒歩約39分 バス乗車時間9分 バス停「茗荷谷」徒歩6分
■2017年大幅リフォーム済み♪
(水回り・内装・外装)
■駐車場3台分あり!
(建物前面と敷地向かいの土地にカーポート2台分)
■丸山小学校まで徒歩10分圏内
■収納スペース多数あり
物件写真
物件概要
物件ID
茗荷谷中古住宅
販売価格
19,800,000円
物件種別
中古住宅
地目
宅地
用途地域
市街化調整区域
土地面積
公簿 116.05㎡(約35.1坪)
私道負担面積
無
建ぺい率
60%
容積率
200%
接道状況
公道 南西側幅員約5.7m/接道約8.0m
土地権利
所有権
建物構造
木造2階建
建物面積
1F:55.67㎡ 2F:57.47㎡ 計114.14㎡
築年月
1994年7月
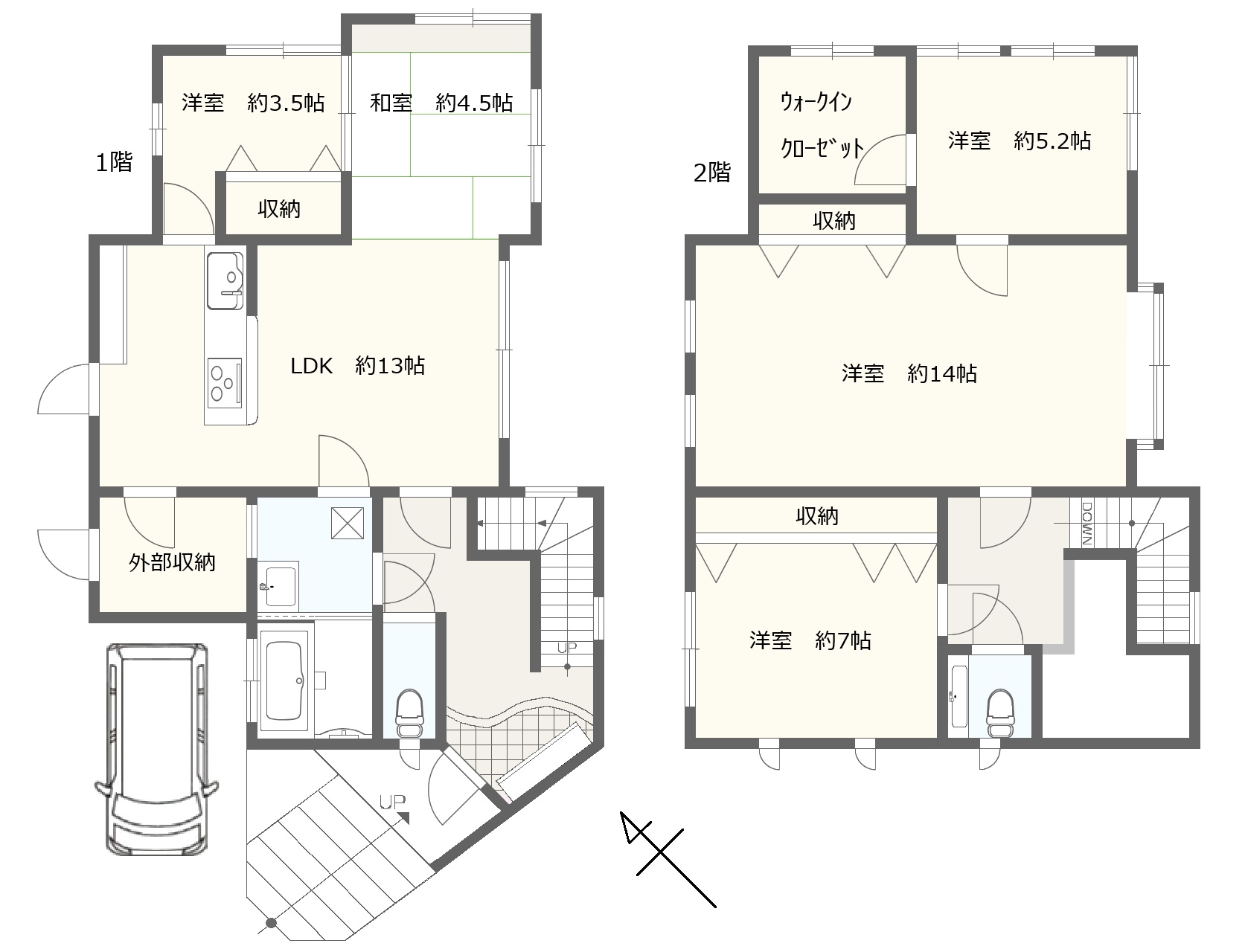
間取り
4LDK
現況
空家
引渡/入居
相談
取引態様
媒介
交通
JR信越本線「亀田駅」徒歩約39分 バス乗車時間9分 バス停「茗荷谷」徒歩6分
周辺情報
【コンビニ】セブンイレブン新潟丸山店まで約850m
【販売店】中央卸売市場まで約1150m
【販売店】ドラッグ・トップスかめだ三條岡店まで約2200m
【販売店】ひらせいホームセンター横越店まで約2950m
【小学校】新潟市立丸山小学校まで約680m
【中学校】新潟市立大江山中学校まで約850m
【病院】誠信会椿田病院まで約1650m
【公園】大江山公園まで約1600m
設備・条件
■ライフライン
・公営水道・公共下水・都市ガス
■売主の契約不適合免責、現況渡しです。
土地











































